- Period Property
- Good Size Living Accomdation
- Off Road Parking
- Good Size Rear Garden
Full Description
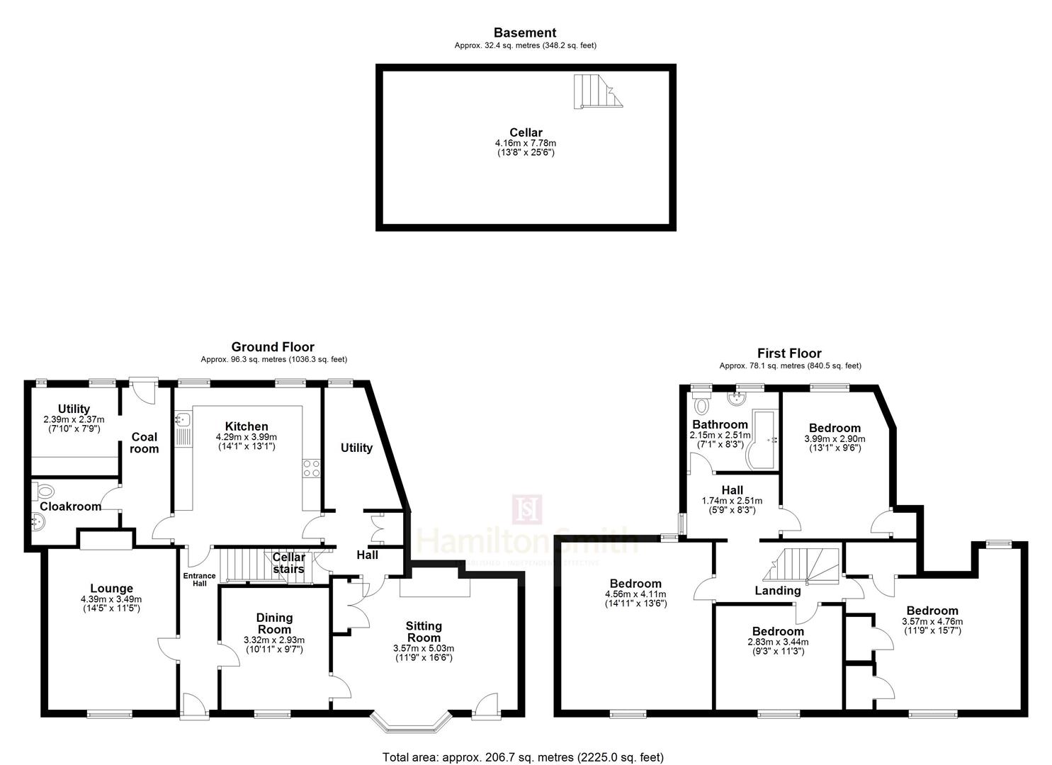
This charming Grade II Listed town house is ideally situated on Needham Market High Street. The property boasts spacious accommodation and offers a wealth of charm and character including exposed beams and open fireplace. Accommodation includes Living Room, Sitting Room, Dining Room, Kitchen, Boot Room, Cellar, 4 Bedrooms, Bathroom, Pleasant Walled Gardens, Off Road Parking.
With front door leading to...
ENTRANCE HALL: With Exposed ceiling beams, radiator, wood flooring and stairs to first floor, doors leading to...
DINING ROOM: 10'11" x 9'7" (3.33m x 2.92m)Sash window to front aspect, feature Victorian fireplace with tiled surround and hearth, wood flooring, exposed ceiling beams and radiator. Door leading to...
SITTING ROOM: 16'6" x 11'9" (5.03m x 3.58m) With bay window to front aspect with fitted window seat, built in storage cupboard with access to second front door. Two radiators, red brick fireplace with wood burner inset. Door to inner hall....
INNER HALL: Built in storage cupboard, door to large walk in larder, door to kitchen and steps to cellar.
WALK IN LARDER/UTILITY: Window to rear, radiator, wall mounted boiler, wood flooring and shelving.
LOUNGE: 14'5" x 11'5" (4.39m x 3.48m) Sash window to front aspect, fireplace with log burner inset, exposed ceiling beam, radiator and wood flooring.
KITCHEN: 14'1" x 13'1" (4.29m x 3.99m) With two windows to rear aspect, fitted with a range of matching wall and base level units with drawers and work surfaces over, Butler sink unit with mixer tap over, two integral ovens, integral hob with extractor over, space and plumbing for dishwasher, space for appliances, radiator, wood flooring and door leading to...
REAR LOBBY: With tiled floor. door to garden, doors leading to...
CLOAKROOM: With low level W.C, pedestal wash hand basin and tiled floor.
BOOT ROOM: Two windows to rear, fitted with base units and work surfaces over, space and plumbing for washing machine and dryer and tiled floor
CELLAR: 24'11" x 13'7" (7.59m x 4.14m) With two radiators.
FIRST FLOOR
LANDING: With radiator, doors leading to...
BEDROOM 14'11" x 14'19" max (4.55m x 4.27m max) With sash window to front aspect, window to rear aspect, Victorian cast iron fireplace, three built in cupboards.
BEDROOM 11'11" x 9'7" (3.63m x 2.92m) Sash window to front aspect, radiator.
BEDROOM 15'4" x 13'9" (4.67m x 4.19m) With sash window to front aspect, window to rear aspect, cast iron Victorian fireplace, radiator.
LANDING LOUNGE AREA: 8'2" x 5'9" (2.49m x 1.75m) Window to side, loft access, doors leading to...
BEDROOM 13'2" x 9'5" (4.01m x 2.87m) With window to rear aspect, built in storage cupboard and feature fireplace.
BATHROOM: With two windows to rear aspect, fitted suite comprising p shaped bath with shower over, low level W.C, wash hand basin, heated towel rail and tiled floor and walls.
OUTSIDE: The garden to the rear of the property is mainly laid to lawn, it is L-shaped with concrete patio area, there are raised flower beds, garden shed, the garden is enclosed by a brick wall. Beyond the brick wall is a further parcel of land which provides parking and a storage space.
AGENTS NOTE:
Worcester Bosch boiler fitted September 2023
Viewing
Please contact us on 01728 860699 if you wish to arrange a viewing appointment for this property, or require further information.
Hamilton Smith - IP16 endeavour to maintain accurate depictions of properties in Virtual Tours, Floor Plans and descriptions, however, these are intended only as a guide and purchasers must satisfy themselves by personal inspection.
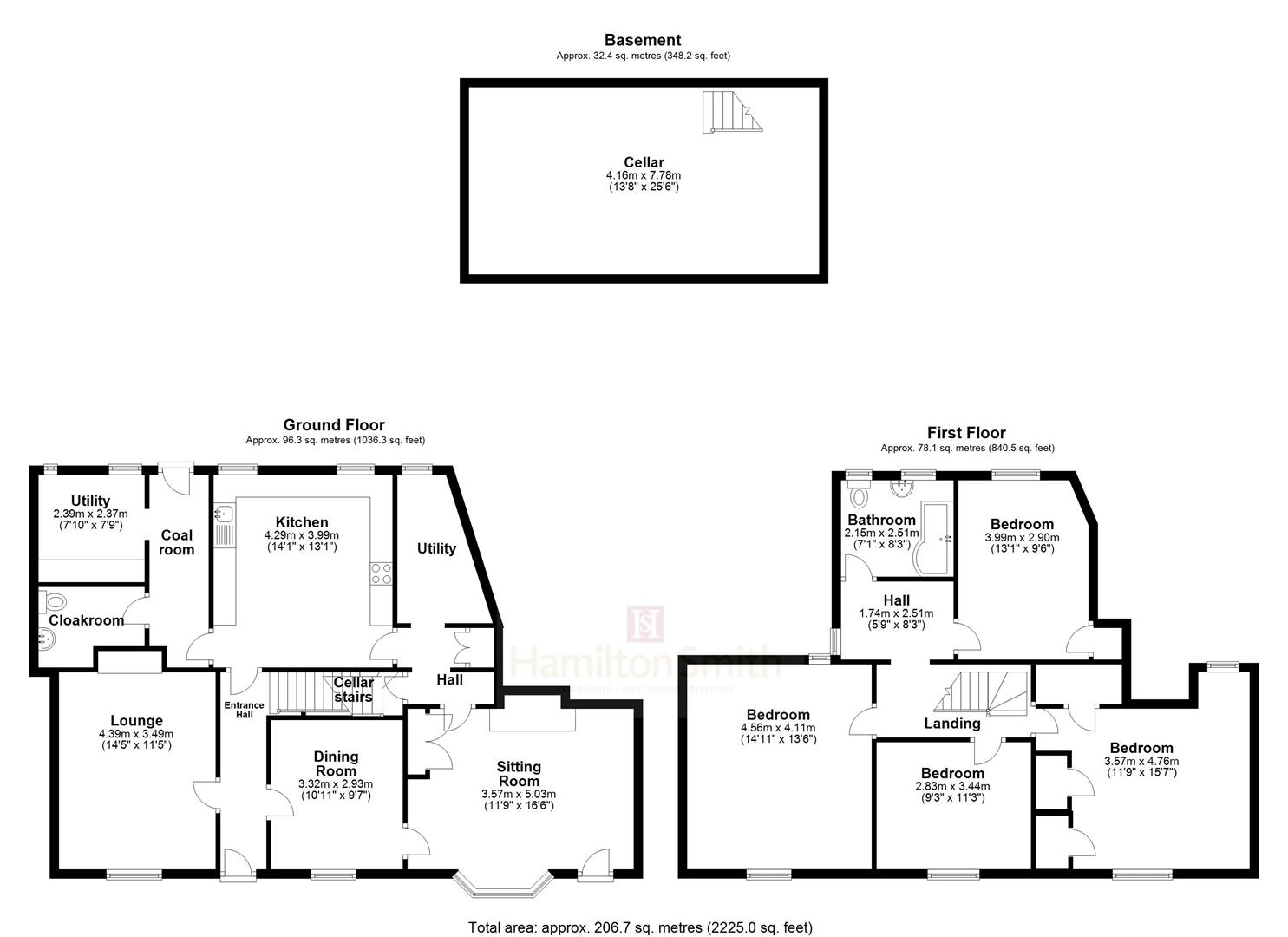
With front door leading to...
ENTRANCE HALL: With Exposed ceiling beams, radiator, wood flooring and stairs to first floor, doors leading to...
DINING ROOM: 10'11" x 9'7" (3.33m x 2.92m)Sash window to front aspect, feature Victorian fireplace with tiled surround and hearth, wood flooring, exposed ceiling beams and radiator. Door leading to...
SITTING ROOM: 16'6" x 11'9" (5.03m x 3.58m) With bay window to front aspect with fitted window seat, built in storage cupboard with access to second front door. Two radiators, red brick fireplace with wood burner inset. Door to inner hall....
INNER HALL: Built in storage cupboard, door to large walk in larder, door to kitchen and steps to cellar.
WALK IN LARDER/UTILITY: Window to rear, radiator, wall mounted boiler, wood flooring and shelving.
LOUNGE: 14'5" x 11'5" (4.39m x 3.48m) Sash window to front aspect, fireplace with log burner inset, exposed ceiling beam, radiator and wood flooring.
KITCHEN: 14'1" x 13'1" (4.29m x 3.99m) With two windows to rear aspect, fitted with a range of matching wall and base level units with drawers and work surfaces over, Butler sink unit with mixer tap over, two integral ovens, integral hob with extractor over, space and plumbing for dishwasher, space for appliances, radiator, wood flooring and door leading to...
REAR LOBBY: With tiled floor. door to garden, doors leading to...
CLOAKROOM: With low level W.C, pedestal wash hand basin and tiled floor.
BOOT ROOM: Two windows to rear, fitted with base units and work surfaces over, space and plumbing for washing machine and dryer and tiled floor
CELLAR: 24'11" x 13'7" (7.59m x 4.14m) With two radiators.
FIRST FLOOR
LANDING: With radiator, doors leading to...
BEDROOM 14'11" x 14'19" max (4.55m x 4.27m max) With sash window to front aspect, window to rear aspect, Victorian cast iron fireplace, three built in cupboards.
BEDROOM 11'11" x 9'7" (3.63m x 2.92m) Sash window to front aspect, radiator.
BEDROOM 15'4" x 13'9" (4.67m x 4.19m) With sash window to front aspect, window to rear aspect, cast iron Victorian fireplace, radiator.
LANDING LOUNGE AREA: 8'2" x 5'9" (2.49m x 1.75m) Window to side, loft access, doors leading to...
BEDROOM 13'2" x 9'5" (4.01m x 2.87m) With window to rear aspect, built in storage cupboard and feature fireplace.
BATHROOM: With two windows to rear aspect, fitted suite comprising p shaped bath with shower over, low level W.C, wash hand basin, heated towel rail and tiled floor and walls.
OUTSIDE: The garden to the rear of the property is mainly laid to lawn, it is L-shaped with concrete patio area, there are raised flower beds, garden shed, the garden is enclosed by a brick wall. Beyond the brick wall is a further parcel of land which provides parking and a storage space.
AGENTS NOTE:
Worcester Bosch boiler fitted September 2023
Viewing
Please contact us on 01728 860699 if you wish to arrange a viewing appointment for this property, or require further information.
Hamilton Smith - IP16 endeavour to maintain accurate depictions of properties in Virtual Tours, Floor Plans and descriptions, however, these are intended only as a guide and purchasers must satisfy themselves by personal inspection.

