Full Description
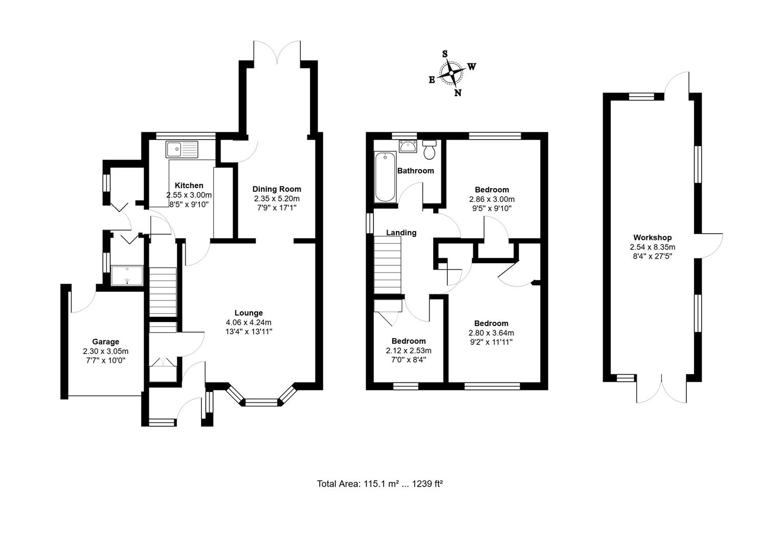
HAMILTON SMITH Ipswich are pleased to offer for sale this EXTENDED three bedroom semi detached house situated on the popular Crofts development. This spacious home benefits from two reception rooms, downstairs shower & cloakroom, first floor bathroom, gas central heating with comb boiler fitted 2023, double glazed windows, off road parking and 27ft brick built WORKSHOP. With some further updating required and offered with NO CHAIN.
Ipswich
Ipswich is the county town of Suffolk and provides a comprehensive range of educational, commercial and recreational facilities and an excellent link to London Liverpool Street Railway Station (about 70 mins). The town has two shopping centres, shops, restaurants, bars, two multi screen cinemas, music & entertainment venues and many sports clubs and societies. The Waterfront docks has an on going regeneration providing an excellent marina, recently built high tech University & college, restaurants, bars and residential development.
Double glazed door to
PORCH with stairs off and door to
LOUNGE: (4.01m x 4.19m (13'2 x 13'9))
Double glazed bay window to front, laminated flooring, radiator, opens through to dining area and separate door to kicthen.
DINING ROOM: (2.95m x 2.31m (9'8 x 7'7))
Laminated flooring, radiator, cupboard, through to
DINING ROOM EXTENSION/STUDY: (2.01m x 1.93m (6'7 x 6'4))
Double glazed doors to garden.
KITCHEN: (2.92m x 2.49m (9'7 x 8'2))
Double glazed window to rear, wall and base units, worktops, gas hob and electric oven, space for appliances, pantry cupboard, drawers, tiled walls, radiator, COMBI boiler fitted 2023 and doors to...
LOBBY with doors off double glazed door to outside
CLOAKROOM:
Double glazed window to side, W.C and hand wash basin.
SHOWER ROOM:
Shower and screen, double glazed window to side and a towel radiator.
1st FLOOR LANDING:
BEDROOM ONE: (3.58m x 2.79m (11'9 x 9'2 ))
Double glazed window to front, 2 cupboards and a radiator.
BEDROOM TWO: (2.95m x 2.79m (9'8 x 9'2 ))
Double glazed window to rear, cupboard and a radiator.
BEDROOM THREE: (2.57m x 2.06m (8'5 x 6'9))
Double glazed window to front, cupboard and a radiator.
BATHROOM:
Double glazed window to rear, bath with mixer taps, hand wash basin and vanity unit, W.C, tiled floor and a radiator.
OUTSIDE: (8.23m x 2.51m workshop (27 x 8'3 workshop))
To the front is block paved providing ample off road parking. Access to side via up and over door.
Up and over door leads to useful storage area with access to rear via a passage.
The rear garden has a lawn, patio, shed, summerhouse and brick WORKSHOP 27ft x 8ft 3" with power and lighting and doors to garden.
WORKSHOP: (8.23m x 2.51m (27 x 8'3))
With power and lighting and doors to garden.
IPSWICH OFFICE:
7 Great Colman Street, Ipswich, IP4 2AA TO VIEW PLEASE CALL 01473 253366 or email ipswich@hamilton-smith.com
Viewing
Please contact us on 01473 253366 if you wish to arrange a viewing appointment for this property, or require further information.
Energy Performance Certificate
Click here to view the Energy Efficiency Rating and Environmental Impact Rating for this property.
Hamilton Smith - IP16 endeavour to maintain accurate depictions of properties in Virtual Tours, Floor Plans and descriptions, however, these are intended only as a guide and purchasers must satisfy themselves by personal inspection.
Ipswich
Ipswich is the county town of Suffolk and provides a comprehensive range of educational, commercial and recreational facilities and an excellent link to London Liverpool Street Railway Station (about 70 mins). The town has two shopping centres, shops, restaurants, bars, two multi screen cinemas, music & entertainment venues and many sports clubs and societies. The Waterfront docks has an on going regeneration providing an excellent marina, recently built high tech University & college, restaurants, bars and residential development.
Double glazed door to
PORCH with stairs off and door to
LOUNGE: (4.01m x 4.19m (13'2 x 13'9))
Double glazed bay window to front, laminated flooring, radiator, opens through to dining area and separate door to kicthen.
DINING ROOM: (2.95m x 2.31m (9'8 x 7'7))
Laminated flooring, radiator, cupboard, through to
DINING ROOM EXTENSION/STUDY: (2.01m x 1.93m (6'7 x 6'4))
Double glazed doors to garden.
KITCHEN: (2.92m x 2.49m (9'7 x 8'2))
Double glazed window to rear, wall and base units, worktops, gas hob and electric oven, space for appliances, pantry cupboard, drawers, tiled walls, radiator, COMBI boiler fitted 2023 and doors to...
LOBBY with doors off double glazed door to outside
CLOAKROOM:
Double glazed window to side, W.C and hand wash basin.
SHOWER ROOM:
Shower and screen, double glazed window to side and a towel radiator.
1st FLOOR LANDING:
BEDROOM ONE: (3.58m x 2.79m (11'9 x 9'2 ))
Double glazed window to front, 2 cupboards and a radiator.
BEDROOM TWO: (2.95m x 2.79m (9'8 x 9'2 ))
Double glazed window to rear, cupboard and a radiator.
BEDROOM THREE: (2.57m x 2.06m (8'5 x 6'9))
Double glazed window to front, cupboard and a radiator.
BATHROOM:
Double glazed window to rear, bath with mixer taps, hand wash basin and vanity unit, W.C, tiled floor and a radiator.
OUTSIDE: (8.23m x 2.51m workshop (27 x 8'3 workshop))
To the front is block paved providing ample off road parking. Access to side via up and over door.
Up and over door leads to useful storage area with access to rear via a passage.
The rear garden has a lawn, patio, shed, summerhouse and brick WORKSHOP 27ft x 8ft 3" with power and lighting and doors to garden.
WORKSHOP: (8.23m x 2.51m (27 x 8'3))
With power and lighting and doors to garden.
IPSWICH OFFICE:
7 Great Colman Street, Ipswich, IP4 2AA TO VIEW PLEASE CALL 01473 253366 or email ipswich@hamilton-smith.com
Viewing
Please contact us on 01473 253366 if you wish to arrange a viewing appointment for this property, or require further information.
Energy Performance Certificate
Click here to view the Energy Efficiency Rating and Environmental Impact Rating for this property.
Hamilton Smith - IP16 endeavour to maintain accurate depictions of properties in Virtual Tours, Floor Plans and descriptions, however, these are intended only as a guide and purchasers must satisfy themselves by personal inspection.

