Full Description
NO CHAIN - AN OPPORTUNITY to purchase this FOUR bedroom DETACHED CHALET STYLE HOUSE situated in a sought after area in north Ipswich on HENLEY AVENUE. Located on a corner plot with a manageable garden and boasts over 1800ft of accommodation. With gas central heating, double glazed windows, cloakroom, 1st floor bathroom and now requires updating and decorating. Call now to book your viewing to appreciate the accommodation on offer.
Ipswich
Ipswich is the county town of Suffolk and provides a comprehensive range of educational, commercial and recreational facilities and an excellent link to London Liverpool Street Railway Station (about 70 mins). The town has two shopping centres, shops, restaurants, bars, two multi screen cinemas, music & entertainment venues and many sports clubs and societies. The Waterfront docks has an on going regeneration providing an excellent marina, recently built high tech University & college, restaurants, bars and residential development.
Double glazed door to
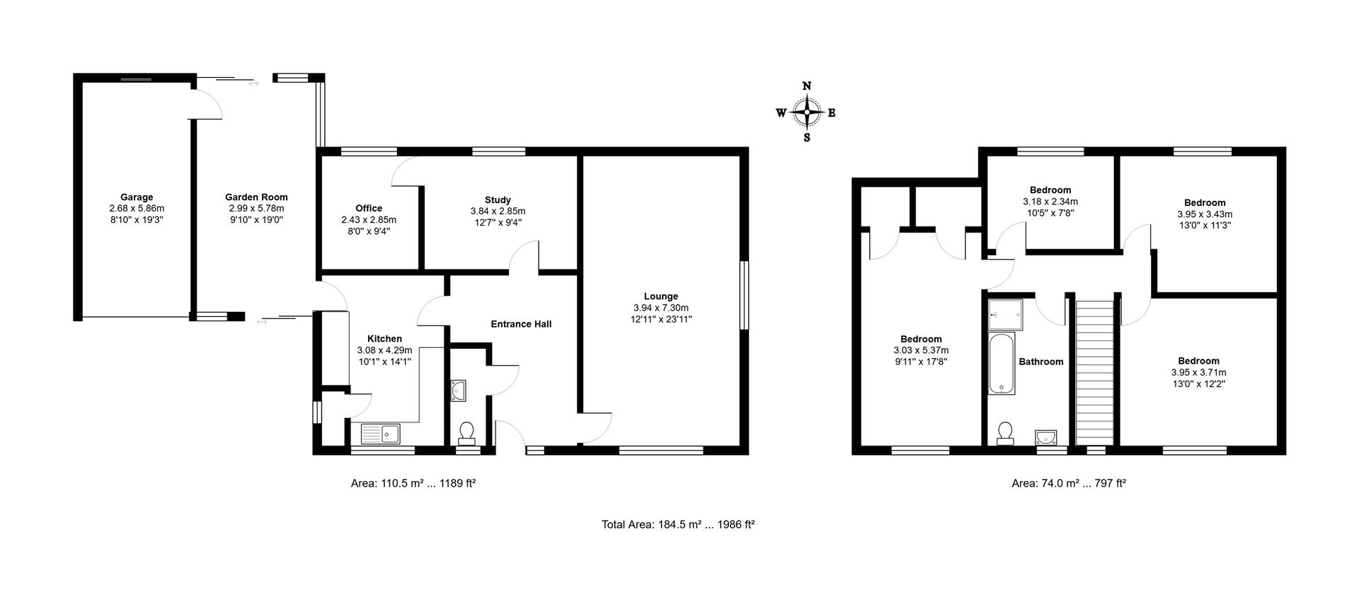
ENTRANCE HALL: stairs off, radiator
LOUNGE: (7.24m x 3.68m (23'9 x 12'1))
Double glazed windows to front and side and a radiator.
DINING ROOM/STUDY: (3.81m x 2.87m (12'6 x 9'5))
Double glazed window to rear, radiator and door to...
STUDY: (2.87m x 2.31m (9'5 x 7'7))
Double glazed window to rear
KITCHEN/BREAKFAST/DINER: (4.19m x 2.36m (13'9 x 7'9))
Double glazed window to front, range of wall and base units, sink and drainer, drawers, electric hob and double oven, space for appliances.
1st FLOOR LANDING:
Doors off
BEDROOM 1: (5.31m x 2.97m (17'5 x 9'9))
Double glazed window to front, built in wardrobe and a radiator.
BEDROOM 2: (3.89m x 3.84m (12'9 x 12'7))
Double glazed window to front and a radiator.
BEDROOM 3: (3.89m x 3.25m (12'9 x 10'8))
Double glazed window to window to rear and a radiator.
BEDROOM 4: (3.18m x 2.29m (10'5 x 7'6))
Double glazed window to rear and a radiator.
BATHROOM:
Double glazed window to front, shower cubicle, bath, W.C, hand wash basin and a radiator.
OUTSIDE:
The property occupies a corner plot with a driveway providing ample off road parking that leads to a garage. There is a lawn and retaining brick wall and access to the rear via a gate.
The enclosed rear garden is mainly paved.
GARAGE: (5.79m x 2.67m (19 x 8'9))
IPSWICH OFFICE:
7 Great Colman Street, Ipswich, IP4 2AA TO VIEW PLEASE CALL 01473 253366 or email ipswich@hamilton-smith.com
Viewing
Please contact us on 01473 253366 if you wish to arrange a viewing appointment for this property, or require further information.
Energy Performance Certificate
Click here to view the Energy Efficiency Rating and Environmental Impact Rating for this property.
Hamilton Smith - IP16 endeavour to maintain accurate depictions of properties in Virtual Tours, Floor Plans and descriptions, however, these are intended only as a guide and purchasers must satisfy themselves by personal inspection.
Ipswich
Ipswich is the county town of Suffolk and provides a comprehensive range of educational, commercial and recreational facilities and an excellent link to London Liverpool Street Railway Station (about 70 mins). The town has two shopping centres, shops, restaurants, bars, two multi screen cinemas, music & entertainment venues and many sports clubs and societies. The Waterfront docks has an on going regeneration providing an excellent marina, recently built high tech University & college, restaurants, bars and residential development.
Double glazed door to
ENTRANCE HALL: stairs off, radiator
LOUNGE: (7.24m x 3.68m (23'9 x 12'1))
Double glazed windows to front and side and a radiator.
DINING ROOM/STUDY: (3.81m x 2.87m (12'6 x 9'5))
Double glazed window to rear, radiator and door to...
STUDY: (2.87m x 2.31m (9'5 x 7'7))
Double glazed window to rear
KITCHEN/BREAKFAST/DINER: (4.19m x 2.36m (13'9 x 7'9))
Double glazed window to front, range of wall and base units, sink and drainer, drawers, electric hob and double oven, space for appliances.
1st FLOOR LANDING:
Doors off
BEDROOM 1: (5.31m x 2.97m (17'5 x 9'9))
Double glazed window to front, built in wardrobe and a radiator.
BEDROOM 2: (3.89m x 3.84m (12'9 x 12'7))
Double glazed window to front and a radiator.
BEDROOM 3: (3.89m x 3.25m (12'9 x 10'8))
Double glazed window to window to rear and a radiator.
BEDROOM 4: (3.18m x 2.29m (10'5 x 7'6))
Double glazed window to rear and a radiator.
BATHROOM:
Double glazed window to front, shower cubicle, bath, W.C, hand wash basin and a radiator.
OUTSIDE:
The property occupies a corner plot with a driveway providing ample off road parking that leads to a garage. There is a lawn and retaining brick wall and access to the rear via a gate.
The enclosed rear garden is mainly paved.
GARAGE: (5.79m x 2.67m (19 x 8'9))
IPSWICH OFFICE:
7 Great Colman Street, Ipswich, IP4 2AA TO VIEW PLEASE CALL 01473 253366 or email ipswich@hamilton-smith.com
Viewing
Please contact us on 01473 253366 if you wish to arrange a viewing appointment for this property, or require further information.
Energy Performance Certificate
Click here to view the Energy Efficiency Rating and Environmental Impact Rating for this property.
Hamilton Smith - IP16 endeavour to maintain accurate depictions of properties in Virtual Tours, Floor Plans and descriptions, however, these are intended only as a guide and purchasers must satisfy themselves by personal inspection.

