Full Description
Nestled in the serene surroundings of Chalk Hill Lane, Great Blakenham, Ipswich, this charming pre-owned park home offers a delightful retreat for those seeking a peaceful lifestyle. Spanning 48'x20', this well-maintained residence is designed for easy living.The home features two generously sized double bedrooms, both equipped with fitted wardrobes, ensuring ample storage space. The master bedroom boasts the added luxury of an en suite bathroom, The spacious kitchen, complemented by a utility room, flows seamlessly into a dining area and a bright living room, where large windows invite natural light and an electric fireplace adds a touch of warmth.Outside, you will find allocated parking and a garage, providing convenience and practicality. The garden space offers a perfect spot for enjoying the tranquil surroundings, while the established park is beautifully landscaped, enhancing the village feel of the development.Set in a picturesque countryside location, this park home is surrounded by ancient woodlands and abundant local wildlife, The peaceful atmosphere is further enhanced by the recent development work, which has introduced new plots and homes, fostering a vibrant community spirit.This property is not just a home; it is a lifestyle choice, offering a harmonious blend of comfort, community.
GREAT BLAKENHAM
Great Blakenham has a public house, large convenience store and a regular bus service. The larger village of Claydon is approximately half a mile and offers a range of shops, post office, public houses, primary and secondary schooling. The Suffolk county town of Ipswich is approximately three miles distant offering a much wider range of facilities including mainline railway link to London's Liverpool Street. The A14 trunk road offers access in an easterly direction to The A12, Ipswich and Felixstowe and in a westerly direction to Bury St Edmunds, Cambridge and on to the Midlands.
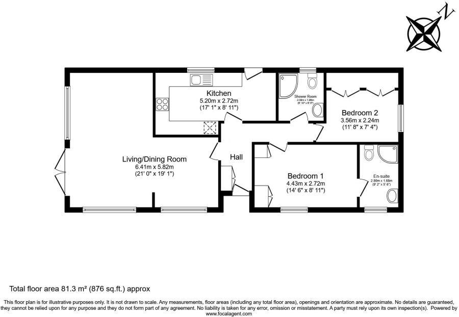
LIVING DINING ROOM (6.41 x 5.82 (21'0" x 19'1"))
Double glazed window side, two double glazed windows to front, double glazed door to side, fire place opening to dining place.
KITCHEN (5.2 x 2.72 (17'0" x 8'11"))
Double glazed window to rear, wall and base units, sink and drainer, space for appliances and door to rear garden.
BEDROOM 1 (4.43 x 2.72 (14'6" x 8'11"))
Double glazed window to front, built in wardrobe, door to ..
ENSUITE
Shower cubicle, low level Wc, hand wash basin, double glazed window to front.
BEDROOM 2 (3.56 x 2.24 (11'8" x 7'4"))
Double glazed window, built in wardrobe.
SHOWER ROOM
Shower cubicle, low level Wc, hand wash basin, double glazed window to rear.
OUTSIDE
Raised decking area and further wrap round gardens, off road parking
GARAGE
Up and over door.
NEEDHAM MARKET:
Hamilton Smith Needham Market
01449 722 242
needham@hamilton-smith.com
www.hamilton-smith.com
Viewing
Please contact us on 01449 722242 if you wish to arrange a viewing appointment for this property, or require further information.
Hamilton Smith - IP16 endeavour to maintain accurate depictions of properties in Virtual Tours, Floor Plans and descriptions, however, these are intended only as a guide and purchasers must satisfy themselves by personal inspection.
GREAT BLAKENHAM
Great Blakenham has a public house, large convenience store and a regular bus service. The larger village of Claydon is approximately half a mile and offers a range of shops, post office, public houses, primary and secondary schooling. The Suffolk county town of Ipswich is approximately three miles distant offering a much wider range of facilities including mainline railway link to London's Liverpool Street. The A14 trunk road offers access in an easterly direction to The A12, Ipswich and Felixstowe and in a westerly direction to Bury St Edmunds, Cambridge and on to the Midlands.
LIVING DINING ROOM (6.41 x 5.82 (21'0" x 19'1"))
Double glazed window side, two double glazed windows to front, double glazed door to side, fire place opening to dining place.
KITCHEN (5.2 x 2.72 (17'0" x 8'11"))
Double glazed window to rear, wall and base units, sink and drainer, space for appliances and door to rear garden.
BEDROOM 1 (4.43 x 2.72 (14'6" x 8'11"))
Double glazed window to front, built in wardrobe, door to ..
ENSUITE
Shower cubicle, low level Wc, hand wash basin, double glazed window to front.
BEDROOM 2 (3.56 x 2.24 (11'8" x 7'4"))
Double glazed window, built in wardrobe.
SHOWER ROOM
Shower cubicle, low level Wc, hand wash basin, double glazed window to rear.
OUTSIDE
Raised decking area and further wrap round gardens, off road parking
GARAGE
Up and over door.
NEEDHAM MARKET:
Hamilton Smith Needham Market
01449 722 242
needham@hamilton-smith.com
www.hamilton-smith.com
Viewing
Please contact us on 01449 722242 if you wish to arrange a viewing appointment for this property, or require further information.
Hamilton Smith - IP16 endeavour to maintain accurate depictions of properties in Virtual Tours, Floor Plans and descriptions, however, these are intended only as a guide and purchasers must satisfy themselves by personal inspection.

