Full Description
Three bedroom DETACHED chalet bungalow perfectly located in the village of Creeting St Mary close to Needham market, the property offers over 1400 sq ft of accommodation sitting in the middle of the wrap round gardens.
CREETING ST MARY
Creeting St Mary is a charming village located in Suffolk, England, with close proximity to the A14. Known for its picturesque countryside and historical charm, the village is home to the Church of St Mary, church of England primary school, with a rich history dating back to the medieval period. This quaint village offers a peaceful retreat with its beautiful landscapes, traditional English cottages, and a warm, welcoming community. Creeting St Mary is a perfect example of rural English life, where history and tranquillity come together.
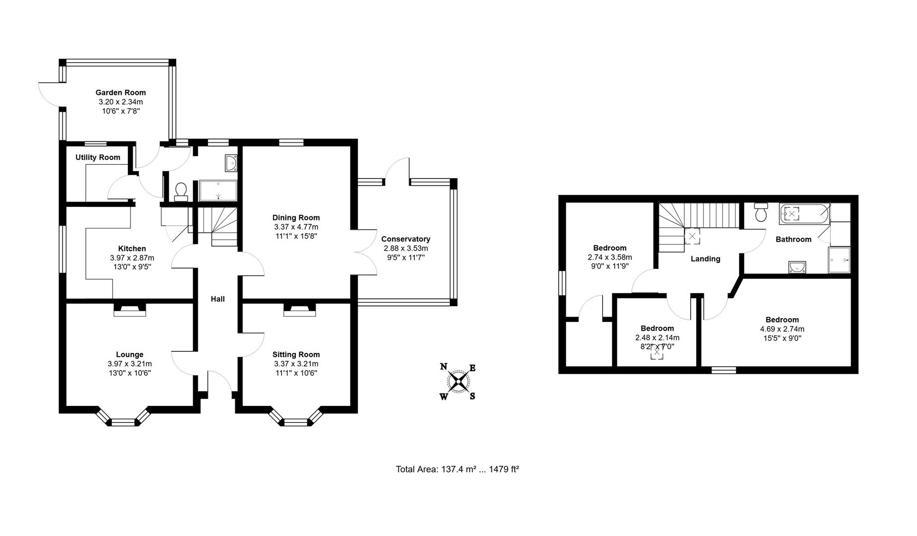
ENTRANCE HALL
Doors to ...
LOUNGE (3.97 x 3.21 (13'0" x 10'6"))
Window to front aspect.
SITTING ROOM (3.37 x 3.21 (11'0" x 10'6"))
Window to front aspect.
KITCHEN (3.97 x 2.87 (13'0" x 9'4"))
Window to side aspect, wall and base units, sink and drainer and space for appliances.
UTILITY ROOM
Base units, space for appliances.
SHOWER ROOM
Window to rear, shower, low level WC and hand wash basin.
GARDEN ROOM (3.20 x 2.34 (10'5" x 7'8"))
Windows to rear and door to rear garden.
DINING ROOM (3.37 x 4.77 (11'0" x 15'7"))
Window to rear aspect.
CONSERVATORY (2.88 x 3.53 (9'5" x 11'6"))
Door to rear garden, windows to side aspect.
LANDING
Doors to ..
BEDROOM 1 (4.69 x 2.74 (15'4" x 8'11"))
Window to front aspect.
BEDROOM 2 (3.58 x x 2.74 (11'8" x x 8'11"))
Window to side aspect.
BEDROOM 3 (2.48 x 2.14 (8'1" x 7'0"))
Window to front aspect.
BATHROOM
Window to side aspect, panelled bath, hand wash basin and low level WC.
OUTSIDE
The property is surrounded by wrap round gardens with mature plants hedged and fenced surround, laid to lawn all sitting upon a good size plot.
NEEDHAM MARKET OFFICE:
Hamilton Smith Needham Market
01449 722 242
needham@hamilton-smith.com
www.hamilton-smith.com
Viewing
Please contact us on 01449 722242 if you wish to arrange a viewing appointment for this property, or require further information.
Energy Performance Certificate
Click here to view the Energy Efficiency Rating and Environmental Impact Rating for this property.
Hamilton Smith - IP16 endeavour to maintain accurate depictions of properties in Virtual Tours, Floor Plans and descriptions, however, these are intended only as a guide and purchasers must satisfy themselves by personal inspection.
CREETING ST MARY
Creeting St Mary is a charming village located in Suffolk, England, with close proximity to the A14. Known for its picturesque countryside and historical charm, the village is home to the Church of St Mary, church of England primary school, with a rich history dating back to the medieval period. This quaint village offers a peaceful retreat with its beautiful landscapes, traditional English cottages, and a warm, welcoming community. Creeting St Mary is a perfect example of rural English life, where history and tranquillity come together.
ENTRANCE HALL
Doors to ...
LOUNGE (3.97 x 3.21 (13'0" x 10'6"))
Window to front aspect.
SITTING ROOM (3.37 x 3.21 (11'0" x 10'6"))
Window to front aspect.
KITCHEN (3.97 x 2.87 (13'0" x 9'4"))
Window to side aspect, wall and base units, sink and drainer and space for appliances.
UTILITY ROOM
Base units, space for appliances.
SHOWER ROOM
Window to rear, shower, low level WC and hand wash basin.
GARDEN ROOM (3.20 x 2.34 (10'5" x 7'8"))
Windows to rear and door to rear garden.
DINING ROOM (3.37 x 4.77 (11'0" x 15'7"))
Window to rear aspect.
CONSERVATORY (2.88 x 3.53 (9'5" x 11'6"))
Door to rear garden, windows to side aspect.
LANDING
Doors to ..
BEDROOM 1 (4.69 x 2.74 (15'4" x 8'11"))
Window to front aspect.
BEDROOM 2 (3.58 x x 2.74 (11'8" x x 8'11"))
Window to side aspect.
BEDROOM 3 (2.48 x 2.14 (8'1" x 7'0"))
Window to front aspect.
BATHROOM
Window to side aspect, panelled bath, hand wash basin and low level WC.
OUTSIDE
The property is surrounded by wrap round gardens with mature plants hedged and fenced surround, laid to lawn all sitting upon a good size plot.
NEEDHAM MARKET OFFICE:
Hamilton Smith Needham Market
01449 722 242
needham@hamilton-smith.com
www.hamilton-smith.com
Viewing
Please contact us on 01449 722242 if you wish to arrange a viewing appointment for this property, or require further information.
Energy Performance Certificate
Click here to view the Energy Efficiency Rating and Environmental Impact Rating for this property.
Hamilton Smith - IP16 endeavour to maintain accurate depictions of properties in Virtual Tours, Floor Plans and descriptions, however, these are intended only as a guide and purchasers must satisfy themselves by personal inspection.

