- Three Bedroom Detached Bungalow
- Wrap around Gardens
- 1400sq ft
Full Description
Three bedroom DETACHED chalet bungalow perfectly located in the village of Creeting St Mary close to Needham market, the property offers over 1400 sq ft of accommodation sitting in the middle of the wrap round gardens.
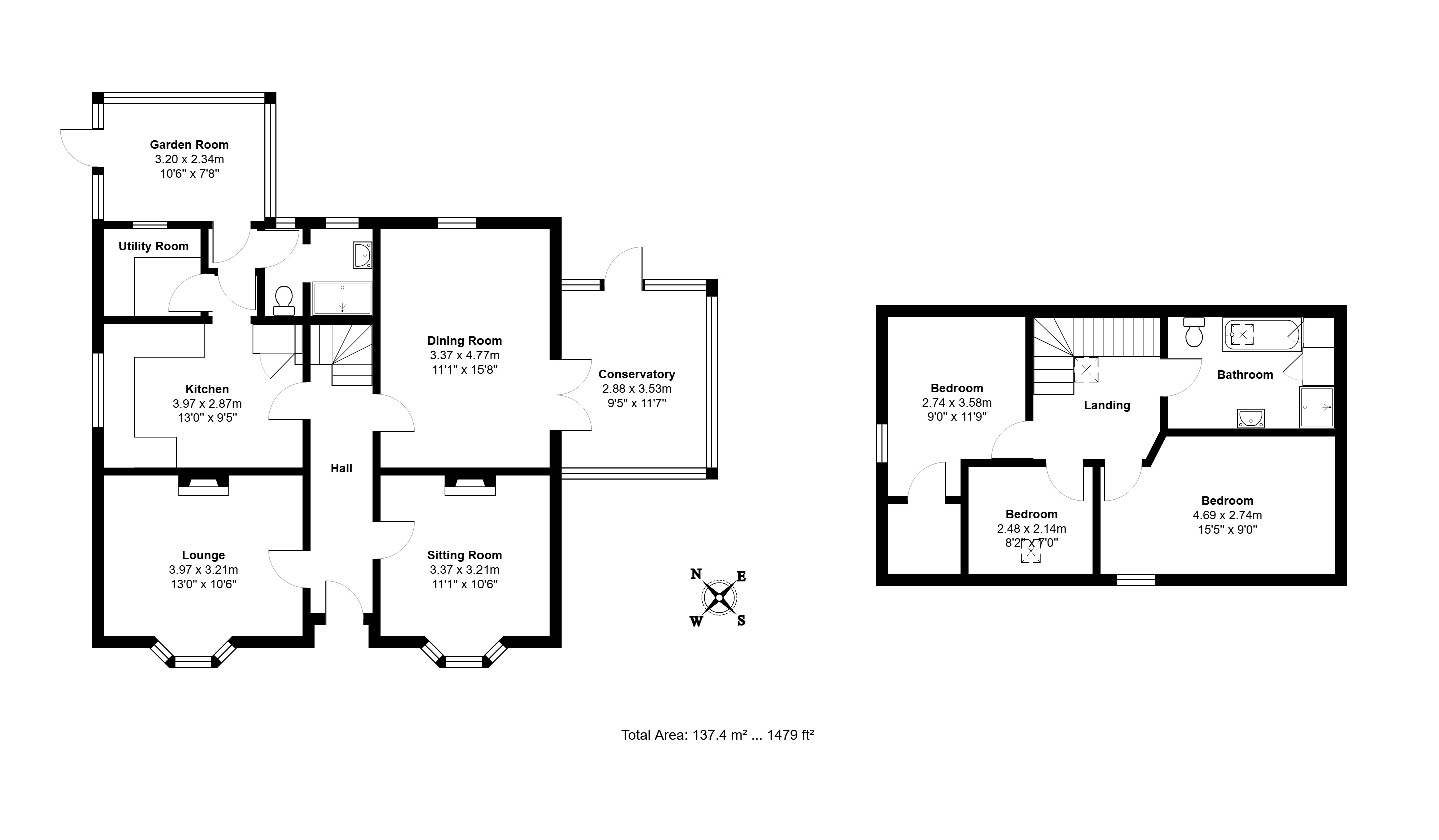
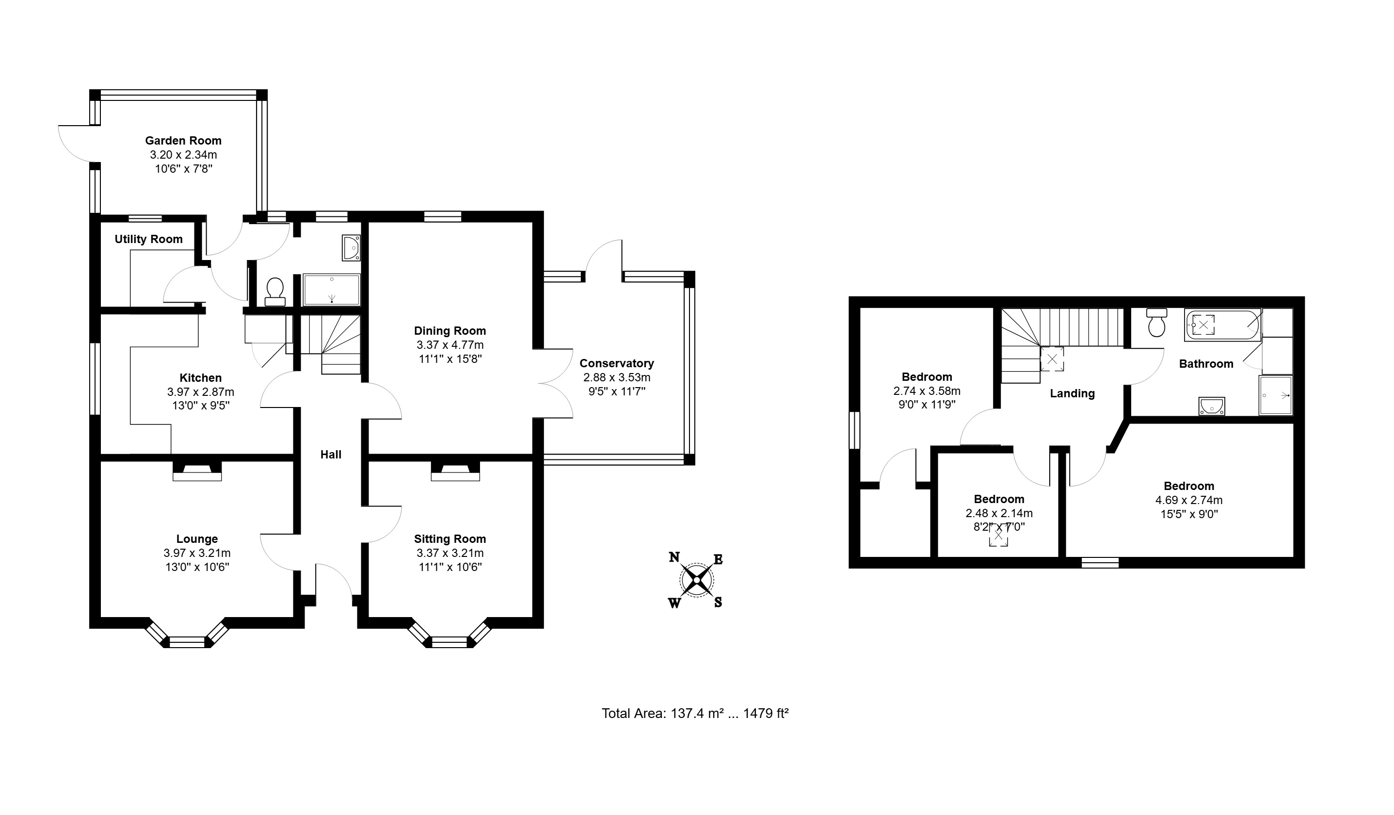
ENTRANCE HALL
Doors to ...
LOUNGE 13'0" x 10'6" (3.97 x 3.21)
Window to front aspect.
SITTING ROOM 11'0" x 10'6" (3.37 x 3.21)
Window to front aspect.
KITCHEN 13'0" x 9'4" (3.97 x 2.87) Window to side aspect, wall and base units, sink and drainer and space for appliances.
UTILITY ROOM
Base units, space for appliances.
SHOWER ROOM Window to rear, shower, low level WC and hand wash basin.
GARDEN ROOM 10'5" x 7'8" (3.20 x 2.34) Windows to rear and door to rear garden.
DINING ROOM 11'0" x 15'7" (3.37 x 4.77)
Window to rear aspect.
CONSERVATORY 9'5" x 11'6" (2.88 x 3.53) Door to rear garden, windows to side aspect.
LANDING
Doors to ..
BEDROOM 1 15'4" x 8'11" (4.69 x 2.74)
Window to front aspect.
BEDROOM 2 11'8" x x 8'11" (3.58 x x 2.74)
Window to side aspect.
BEDROOM 3 8'1" x 7'0" (2.48 x 2.14)
Window to front aspect.
BATHROOM Window to side aspect, panelled bath, hand wash basin and low level WC.
OUTSIDE The property is surrounded by wrap round gardens with mature plants hedged and fenced surround, laid to lawn all sitting
upon a good size plot.
Viewing
Please contact us on 01728 860699 if you wish to arrange a viewing appointment for this property, or require further information.
Hamilton Smith - IP16 endeavour to maintain accurate depictions of properties in Virtual Tours, Floor Plans and descriptions, however, these are intended only as a guide and purchasers must satisfy themselves by personal inspection.
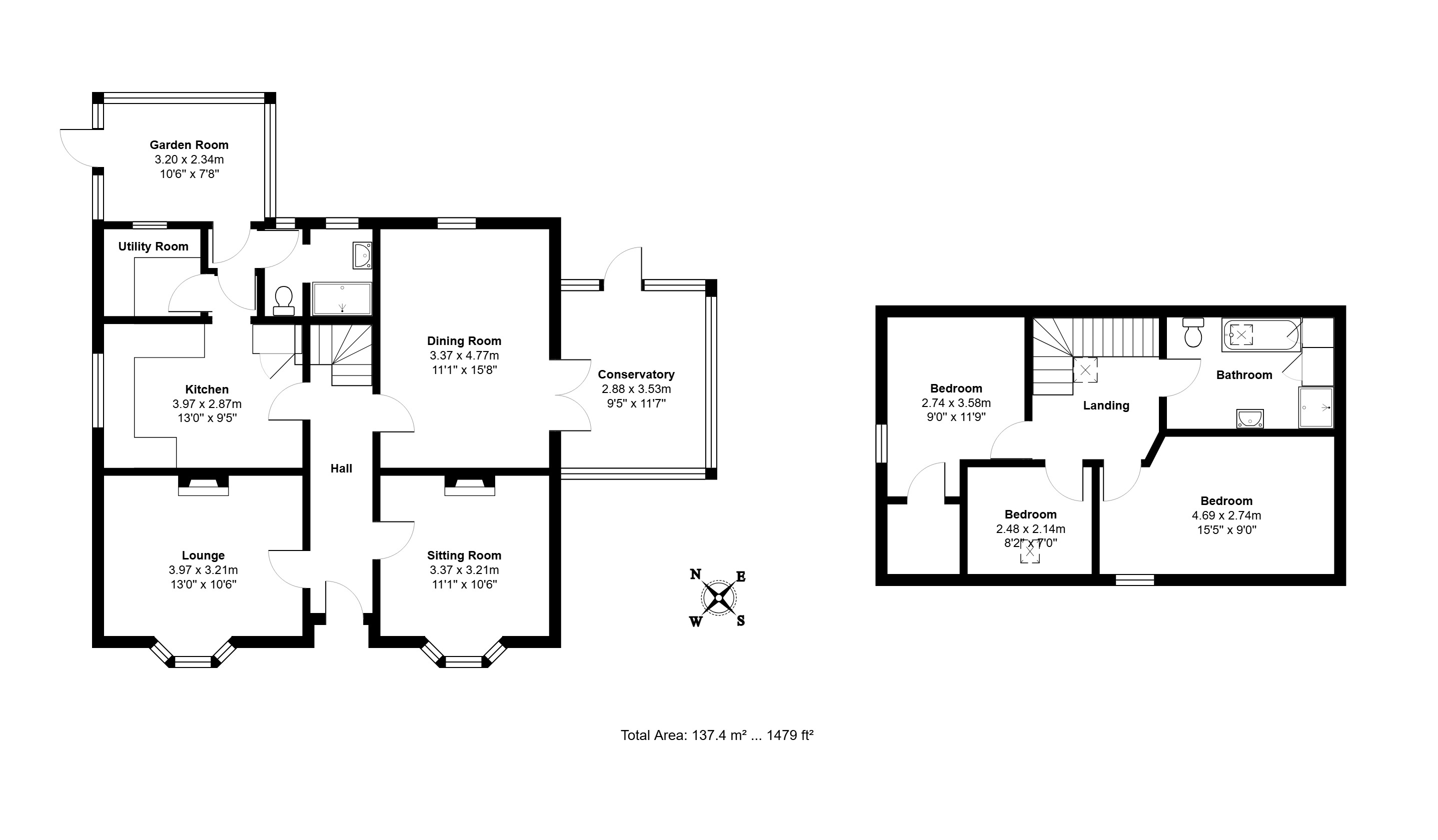
ENTRANCE HALL
Doors to ...
LOUNGE 13'0" x 10'6" (3.97 x 3.21)
Window to front aspect.
SITTING ROOM 11'0" x 10'6" (3.37 x 3.21)
Window to front aspect.
KITCHEN 13'0" x 9'4" (3.97 x 2.87) Window to side aspect, wall and base units, sink and drainer and space for appliances.
UTILITY ROOM
Base units, space for appliances.
SHOWER ROOM Window to rear, shower, low level WC and hand wash basin.
GARDEN ROOM 10'5" x 7'8" (3.20 x 2.34) Windows to rear and door to rear garden.
DINING ROOM 11'0" x 15'7" (3.37 x 4.77)
Window to rear aspect.
CONSERVATORY 9'5" x 11'6" (2.88 x 3.53) Door to rear garden, windows to side aspect.
LANDING
Doors to ..
BEDROOM 1 15'4" x 8'11" (4.69 x 2.74)
Window to front aspect.
BEDROOM 2 11'8" x x 8'11" (3.58 x x 2.74)
Window to side aspect.
BEDROOM 3 8'1" x 7'0" (2.48 x 2.14)
Window to front aspect.
BATHROOM Window to side aspect, panelled bath, hand wash basin and low level WC.
OUTSIDE The property is surrounded by wrap round gardens with mature plants hedged and fenced surround, laid to lawn all sitting
upon a good size plot.
Viewing
Please contact us on 01728 860699 if you wish to arrange a viewing appointment for this property, or require further information.
Hamilton Smith - IP16 endeavour to maintain accurate depictions of properties in Virtual Tours, Floor Plans and descriptions, however, these are intended only as a guide and purchasers must satisfy themselves by personal inspection.

