- 30% Ownership
- Living Room/Dining Room
- Two Bedrooms
- Rear Garden
- Off Road Parking
Full Description
Own 30% of this shared equity, 2 bedroom semi detached house, perfectly presented throughout, providing good size living accommodation and having undergone many upgrades when purchased from new 18 months ago, call now to view.
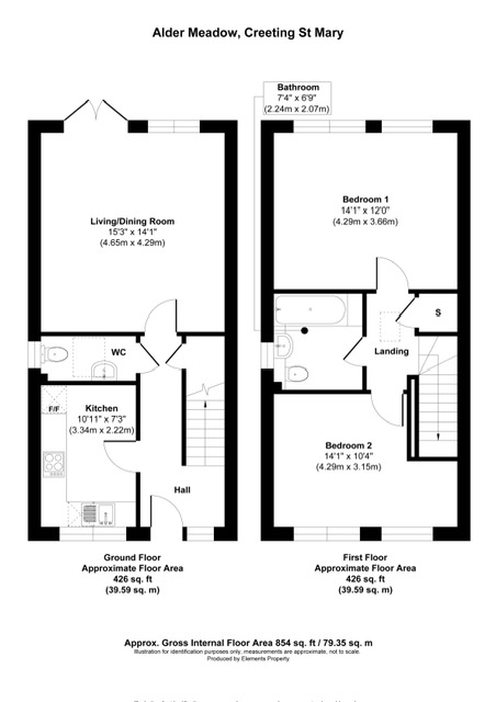
ENTRANCE HALLWAY
doors to ...
CLOAKROOM Hand wash basin, low level WC
KITCHEN 10'11" x 7'3" (3.34 x 2.22) Double glazed window, wall and base units, integrated appliances, Kardean flooring, sink and drainer, radiator.
LIVING ROOM / DINING ROOM 15'3" x 14'0" (4.65 x 4.29)Double glazed window to rear, double glazed doors to rear, Kardean flooring, built in media system with electric fire, radiator
LANDING
Doors to ...
BEDROOM ONE 14'0" x 12'0" (4.29 x 3.66) Double glazed window to rear, radiator.
BEDROOM TWO 14'0" x 10'4" (4.29 x 3.15) Double glazed window to front, radiator.
OUTSIDE
REAR GARDEN Paved rear garden with fenced surround
OFF ROAD PARKING for minimum 2 cars
AGENTS NOTES
KARDEAN FLOORING
MEDIA UNIT WITH BUILT IN FIRE AND STORAGE
PAVED REAR GARDEN
AIR SOURCE HEAT PUMP
Viewing
Please contact us on 01728 860699 if you wish to arrange a viewing appointment for this property, or require further information.
Hamilton Smith - IP16 endeavour to maintain accurate depictions of properties in Virtual Tours, Floor Plans and descriptions, however, these are intended only as a guide and purchasers must satisfy themselves by personal inspection.
ENTRANCE HALLWAY
doors to ...
CLOAKROOM Hand wash basin, low level WC
KITCHEN 10'11" x 7'3" (3.34 x 2.22) Double glazed window, wall and base units, integrated appliances, Kardean flooring, sink and drainer, radiator.
LIVING ROOM / DINING ROOM 15'3" x 14'0" (4.65 x 4.29)Double glazed window to rear, double glazed doors to rear, Kardean flooring, built in media system with electric fire, radiator
LANDING
Doors to ...
BEDROOM ONE 14'0" x 12'0" (4.29 x 3.66) Double glazed window to rear, radiator.
BEDROOM TWO 14'0" x 10'4" (4.29 x 3.15) Double glazed window to front, radiator.
OUTSIDE
REAR GARDEN Paved rear garden with fenced surround
OFF ROAD PARKING for minimum 2 cars
AGENTS NOTES
KARDEAN FLOORING
MEDIA UNIT WITH BUILT IN FIRE AND STORAGE
PAVED REAR GARDEN
AIR SOURCE HEAT PUMP
Viewing
Please contact us on 01728 860699 if you wish to arrange a viewing appointment for this property, or require further information.
Hamilton Smith - IP16 endeavour to maintain accurate depictions of properties in Virtual Tours, Floor Plans and descriptions, however, these are intended only as a guide and purchasers must satisfy themselves by personal inspection.

