Full Description
This EXTENDED 4 bedroom detached house offers a perfect blend of comfort and modern living situated on sought after Grange Farm IP5. With four spacious bedrooms, OPEN PLAN kitchen/dining/family space, STUDY/OFFICE, downstairs WC, 1st floor bathroom, En-Suite, ample OFF ROAD PARKING, GARAGE, garden, this property is ideal for families seeking a welcoming home.
Kesgrave/Grange Farm
The small town of Kesgrave that incorporates Grange Farm is situated just to the east of Ipswich, and offers local shopping facilities along with Tesco supermarket, sports ground and library. The property is in catchment for the well regarded Kesgrave High School. There is good access to both the A12 & A14 trunk routes to London, Cambridge & Norwich and mainline railway stations at both Ipswich & Woodbridge offering regular services to London Liverpool St and Norwich. Ipswich which is Suffolk’s county town offers further facilities including high street shopping, sports clubs, bars & restaurants, marina & waterfront development and music entertainment venues.
Kesgrave is known for its friendly community and excellent local amenities, including schools, parks, and shops, all within easy reach. This property presents a wonderful opportunity for those looking to settle in a vibrant area while enjoying the comforts of a well-designed home.
In summary, this extended detached house in Kesgrave is a fantastic choice for anyone seeking a spacious and functional family home in a desirable location. Don't miss the chance to make this lovely property your own.
ENTRANCE DOOR to
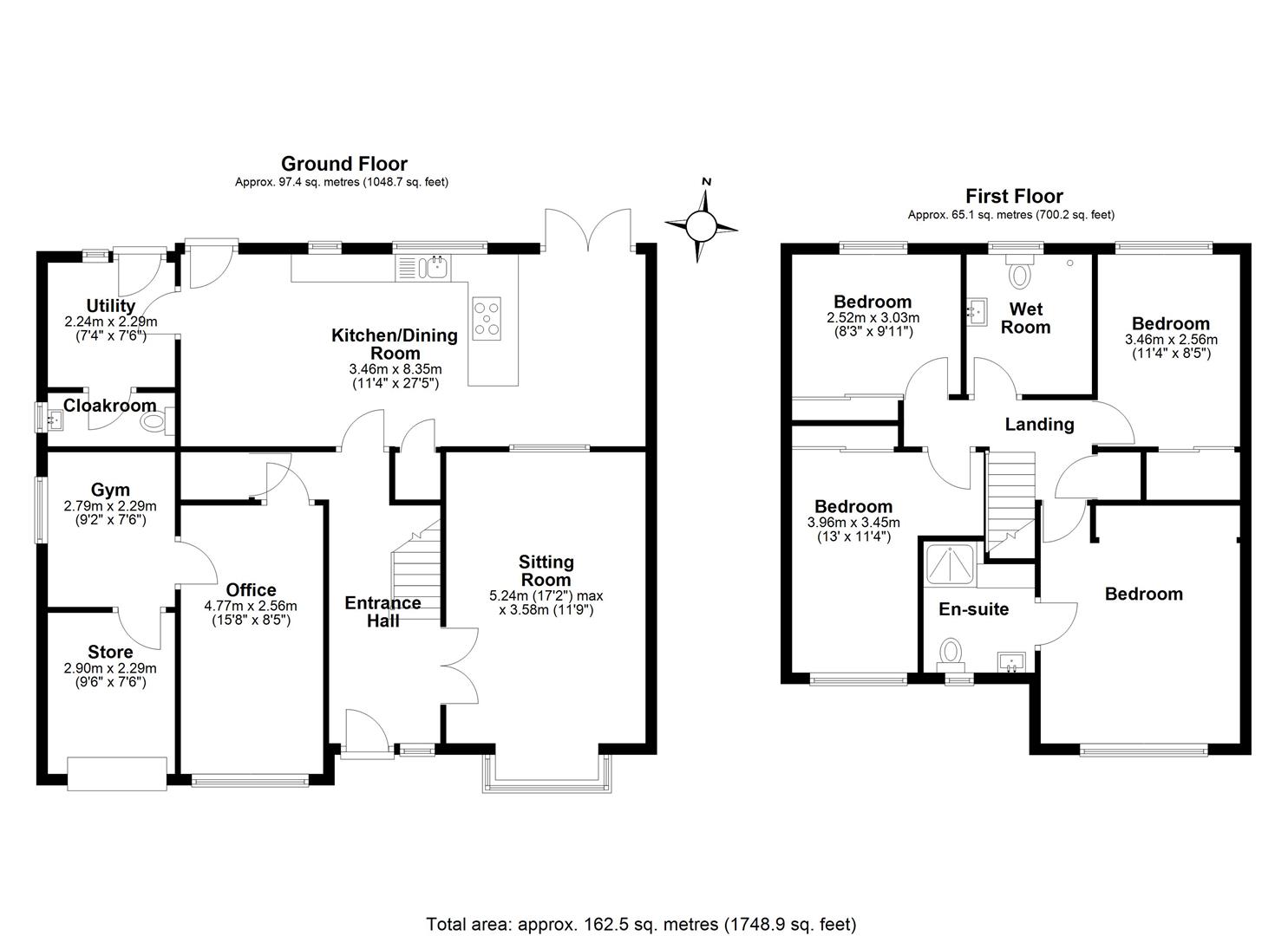
RECEPTION HALL:
Tiled floor, radiator, doors off, stairs to 1st floor
LOUNGE/DINER: (5.23m x 3.58m + bay window (17'2 x 11'9 + bay wind)
Double glazed bay window to front, radiator, feature gas fire.
OPEN PLAN KITCHEN/DINER/SNUG: (8.36m x 3.45m (27'5 x 11'4))
Double glazed window to rear, kitchen with wall and base units, sink and drainer, drawers, drinks fridge, tiled under floor heating, space for appliances, door to understaffs cupboard, breakfast bar, SNUG space with double glazed doors to garden. Door to
UTILITY ROOM: (2.29m x 2.24m (7'6 x 7'4))
Vaulted ceiling with sky lights, wall and base units, sink and drainer, worktops, double glazed door to garden. Door to...
CLOAKROOM:
W.C, hand wash basin, double glazed window to side.
OFFICE: (4.70m x 2.57m (15'5 x 8'5))
(garage conversion) Double glazed window to front, laminated floor, radiator, door to...
GYM: (2.79m x 2.29m (9'2 x 7'6))
Double glazed window to side, radiator, door to garage.
1st FLOOR LANDING:
Airing cupboard with immersion, loft access, doors off.
BEDROOM ONE: (3.73m x 3.51m (12'3 x 11'6))
Double glazed window to front, feature panelled wall with bespoke fitted lighting, further wall paneling with a fitted mirror, lighting, media shelf, fitted open wardrobes and a radiator. Door to...
EN-SUITE:
Double glazed window to front, Shower cubicle, W.C, hand wash basin with vanity unit, extractor and radiator.
BEDROOM TWO: (3.96m x 3.45m + door recess (13 x 11'4 + door rece)
Double glazed window to front, laminated floor, built in wardrobe and a radiator.
BEDROOM THREE: (3.45m x 2.57m (11'4 x 8'5))
Double glazed window to rear, built in wardrobe and a radiator.
BEDROOM FOUR: (3.05m x 2.51m (10 x 8'3))
Double glazed window to rear, built in wardrobe and a radiator.
BATHROOM:
Recently updated for the ultimate bathroom experience with an open shower with a large rain head shower, wall hung W.C, hand wash basin with a mono block tap with a vanity unit under, under floor tiled heating, tiled walls, bespoke lighting and an extractor.
OUTSIDE:
To the front is a driveway providing off road parking for several cars and access to the garage. Side access via a gate leads to the rear.
The rear garden is mainly lawn, patio, wall and fence boundaries. Side gate.
IPSWICH OFFICE:
7 Great Colman Street, Ipswich, IP4 2AA TO VIEW PLEASE CALL 01473 253366 or email ipswich@hamilton-smith.com
Viewing
Please contact us on 01473 253366 if you wish to arrange a viewing appointment for this property, or require further information.
Energy Performance Certificate
Click here to view the Energy Efficiency Rating and Environmental Impact Rating for this property.
Hamilton Smith - IP16 endeavour to maintain accurate depictions of properties in Virtual Tours, Floor Plans and descriptions, however, these are intended only as a guide and purchasers must satisfy themselves by personal inspection.
Kesgrave/Grange Farm
The small town of Kesgrave that incorporates Grange Farm is situated just to the east of Ipswich, and offers local shopping facilities along with Tesco supermarket, sports ground and library. The property is in catchment for the well regarded Kesgrave High School. There is good access to both the A12 & A14 trunk routes to London, Cambridge & Norwich and mainline railway stations at both Ipswich & Woodbridge offering regular services to London Liverpool St and Norwich. Ipswich which is Suffolk’s county town offers further facilities including high street shopping, sports clubs, bars & restaurants, marina & waterfront development and music entertainment venues.
Kesgrave is known for its friendly community and excellent local amenities, including schools, parks, and shops, all within easy reach. This property presents a wonderful opportunity for those looking to settle in a vibrant area while enjoying the comforts of a well-designed home.
In summary, this extended detached house in Kesgrave is a fantastic choice for anyone seeking a spacious and functional family home in a desirable location. Don't miss the chance to make this lovely property your own.
ENTRANCE DOOR to
RECEPTION HALL:
Tiled floor, radiator, doors off, stairs to 1st floor
LOUNGE/DINER: (5.23m x 3.58m + bay window (17'2 x 11'9 + bay wind)
Double glazed bay window to front, radiator, feature gas fire.
OPEN PLAN KITCHEN/DINER/SNUG: (8.36m x 3.45m (27'5 x 11'4))
Double glazed window to rear, kitchen with wall and base units, sink and drainer, drawers, drinks fridge, tiled under floor heating, space for appliances, door to understaffs cupboard, breakfast bar, SNUG space with double glazed doors to garden. Door to
UTILITY ROOM: (2.29m x 2.24m (7'6 x 7'4))
Vaulted ceiling with sky lights, wall and base units, sink and drainer, worktops, double glazed door to garden. Door to...
CLOAKROOM:
W.C, hand wash basin, double glazed window to side.
OFFICE: (4.70m x 2.57m (15'5 x 8'5))
(garage conversion) Double glazed window to front, laminated floor, radiator, door to...
GYM: (2.79m x 2.29m (9'2 x 7'6))
Double glazed window to side, radiator, door to garage.
1st FLOOR LANDING:
Airing cupboard with immersion, loft access, doors off.
BEDROOM ONE: (3.73m x 3.51m (12'3 x 11'6))
Double glazed window to front, feature panelled wall with bespoke fitted lighting, further wall paneling with a fitted mirror, lighting, media shelf, fitted open wardrobes and a radiator. Door to...
EN-SUITE:
Double glazed window to front, Shower cubicle, W.C, hand wash basin with vanity unit, extractor and radiator.
BEDROOM TWO: (3.96m x 3.45m + door recess (13 x 11'4 + door rece)
Double glazed window to front, laminated floor, built in wardrobe and a radiator.
BEDROOM THREE: (3.45m x 2.57m (11'4 x 8'5))
Double glazed window to rear, built in wardrobe and a radiator.
BEDROOM FOUR: (3.05m x 2.51m (10 x 8'3))
Double glazed window to rear, built in wardrobe and a radiator.
BATHROOM:
Recently updated for the ultimate bathroom experience with an open shower with a large rain head shower, wall hung W.C, hand wash basin with a mono block tap with a vanity unit under, under floor tiled heating, tiled walls, bespoke lighting and an extractor.
OUTSIDE:
To the front is a driveway providing off road parking for several cars and access to the garage. Side access via a gate leads to the rear.
The rear garden is mainly lawn, patio, wall and fence boundaries. Side gate.
IPSWICH OFFICE:
7 Great Colman Street, Ipswich, IP4 2AA TO VIEW PLEASE CALL 01473 253366 or email ipswich@hamilton-smith.com
Viewing
Please contact us on 01473 253366 if you wish to arrange a viewing appointment for this property, or require further information.
Energy Performance Certificate
Click here to view the Energy Efficiency Rating and Environmental Impact Rating for this property.
Hamilton Smith - IP16 endeavour to maintain accurate depictions of properties in Virtual Tours, Floor Plans and descriptions, however, these are intended only as a guide and purchasers must satisfy themselves by personal inspection.

