- Open Plan Kitchen/ Living room
- Rainfall shower
- Double glazing
- Gas central heating
- Parking
- Storage
Full Description
Hamilton Smith Leiston are pleased to offer to let this recently refurbished 1 bedroom ground floor flat which has been finished to an excellent standard. The property has one off road parking space and is located with good access to local amenities.
Hamilton Smith Leiston are pleased to offer to let this recently refurbished 1 bedroom ground floor flat which has been finished to an excellent standard. The property has one off road parking space and is located with good access to local amenities.
HALLWAY
SHOWER ROOM Walk in shower, wash hand basin with cupboards below. W/C. Heated towel rail. Tiled floor.
KITCHEN High and low level units with worksurface. Space for tall fridge freezer and washing machine. Fitted electric oven, hob and extractor fan. Radiator.
LIVING AREA Duel aspect windows. Radiator.
BEDROOM Window to the side, radiator. Wardrobe.
Council tax band A
Viewing
Please contact us on 01728 833007 if you wish to arrange a viewing appointment for this property, or require further information.
Energy Performance Certificate
Click here to view the Energy Efficiency Rating and Environmental Impact Rating for this property.
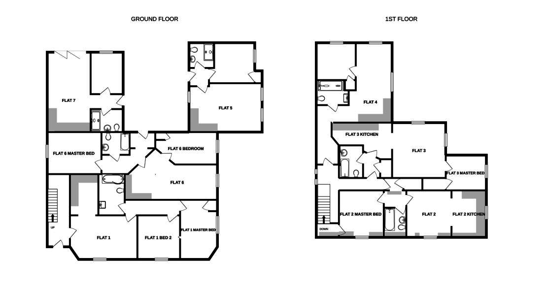
Hamilton Smith - IP16 endeavour to maintain accurate depictions of properties in Virtual Tours, Floor Plans and descriptions, however, these are intended only as a guide and purchasers must satisfy themselves by personal inspection.
Hamilton Smith Leiston are pleased to offer to let this recently refurbished 1 bedroom ground floor flat which has been finished to an excellent standard. The property has one off road parking space and is located with good access to local amenities.
HALLWAY
SHOWER ROOM Walk in shower, wash hand basin with cupboards below. W/C. Heated towel rail. Tiled floor.
KITCHEN High and low level units with worksurface. Space for tall fridge freezer and washing machine. Fitted electric oven, hob and extractor fan. Radiator.
LIVING AREA Duel aspect windows. Radiator.
BEDROOM Window to the side, radiator. Wardrobe.
Council tax band A
Viewing
Please contact us on 01728 833007 if you wish to arrange a viewing appointment for this property, or require further information.
Energy Performance Certificate
Click here to view the Energy Efficiency Rating and Environmental Impact Rating for this property.
Hamilton Smith - IP16 endeavour to maintain accurate depictions of properties in Virtual Tours, Floor Plans and descriptions, however, these are intended only as a guide and purchasers must satisfy themselves by personal inspection.

