- Newly refurbished
- Office space for 10-15 people
- Private meeting room
- Meeting room
- Kitchen
- Toilets
Full Description
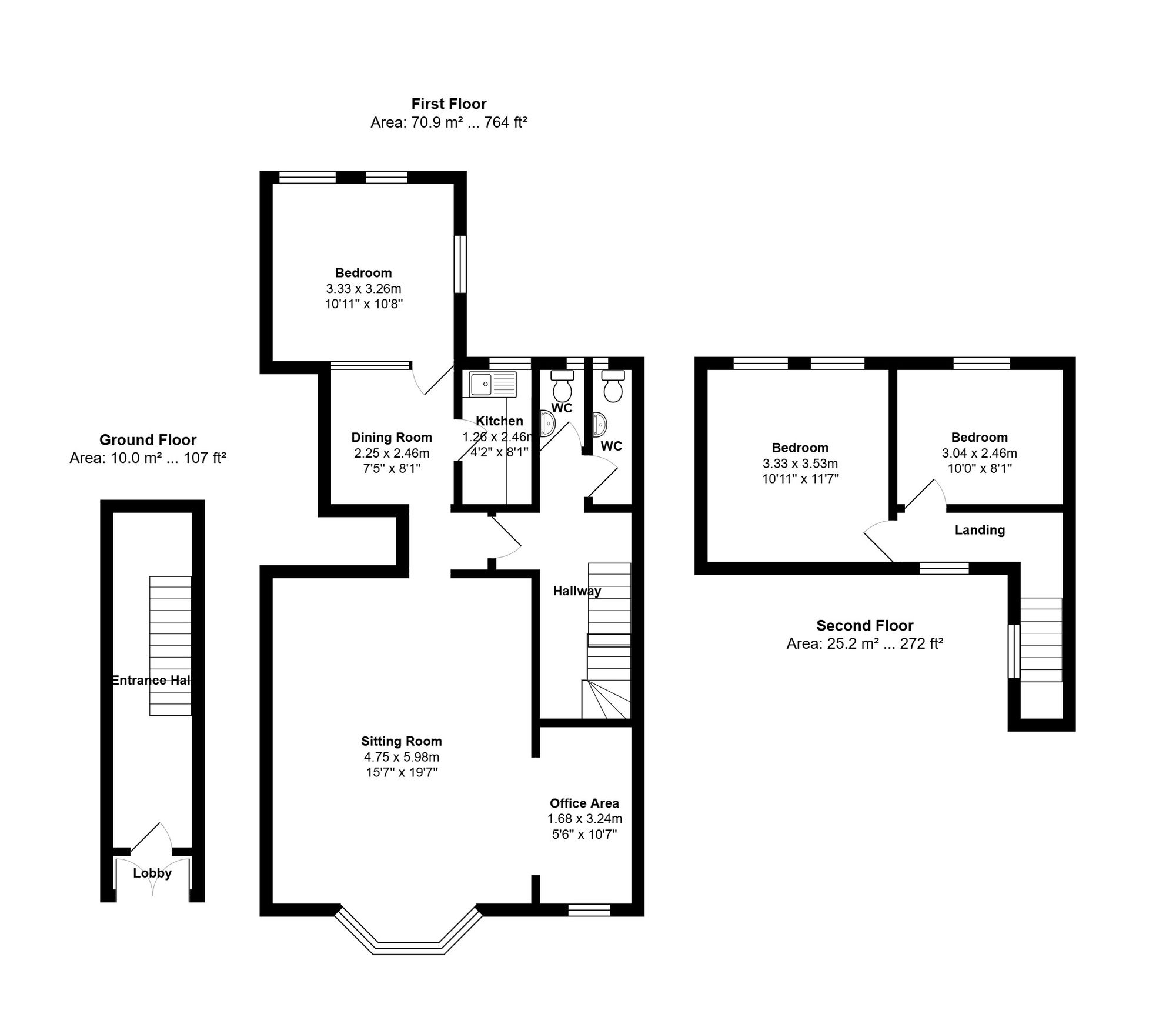
An unfurnished office space spread across the 1st and 2nd floor located in Leiston High Street. An ideal location and completely refurbished to a high standard.
Disclaimer
Every effort has been made to ensure the accuracy of these particulars; however, they do not form part of any offer or contract and accuracy cannot be guaranteed. Interested parties should rely on their own inspections and professional advice. All measurements are approximate. Fixtures, fittings and appliances have not been tested and no guarantee is given as to their condition or operation. Photographs are for guidance only and do not imply inclusion. No assurance can be given that planning permission, listed building consent or building regulations approval have been obtained. The agents are not aware of any covenants or restrictions unless stated. Site plans are indicative only and buyers should rely on the Land Registry or transfer plan. Estate agents are required to verify the identity of sellers and buyers under the Money Laundering Regulations 2017. A Property Information Questionnaire is available on request.
Viewing
Please contact us on 01728 833007 if you wish to arrange a viewing appointment for this property, or require further information.
Hamilton Smith - IP16 endeavour to maintain accurate depictions of properties in Virtual Tours, Floor Plans and descriptions, however, these are intended only as a guide and purchasers must satisfy themselves by personal inspection.

