- Two Bedroom Flat
- Sitting Room
- Kitchen
- Bathroom
- Gas Central Heating
Full Description
Hamilton Smith Lettings are pleased to offer for rent this split level unfurnished two bedroom flat with a modern bathroom and gas central heating
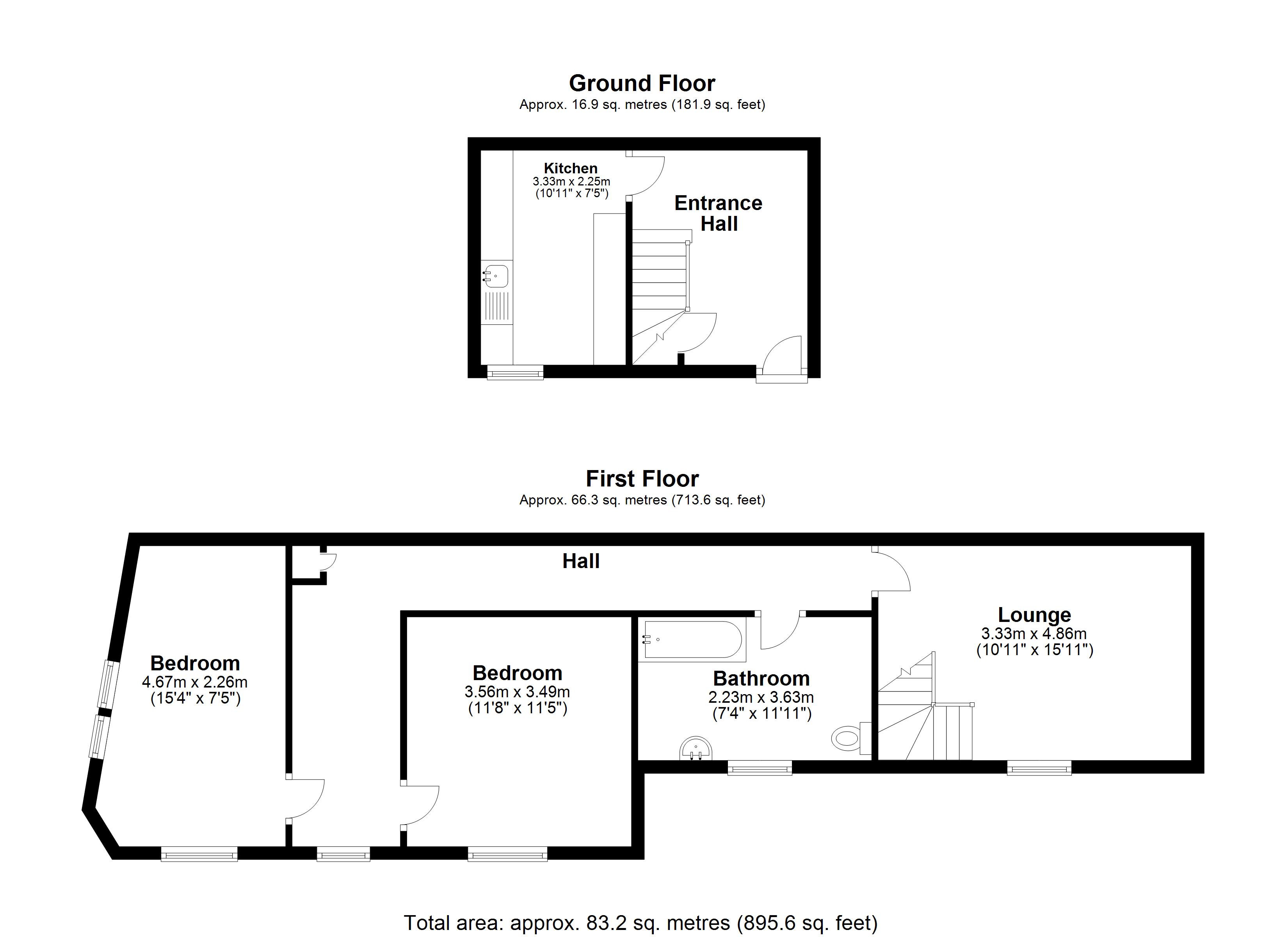
ENTRANCE HALL Leading in from front door is the entrance hall with under stairs storage cupboard
KITCHEN High and low level units fitted with window facing rear aspect of property. Space for washing machine, oven and fridge freezer
STAIRS TO FIRST FLOOR Leading off sitting room
SITTING ROOM 10' 9" x 14' 5" (3.3m x 4.4m) With carpet fitted and window facing front aspect of property. Built in cupboard
BATHROOM White suite fitted with toilet sink and bath. Mixer shower fitted with double glazed window
BEDROOM ONE 10' 9" x 11' 9" (3.3m x 3.6m) With carpet fitted and window facing front aspect of property
BEDROOM TWO 15' 1" x 7' 2" (4.6m x 2.2m) With carpet fitted and window facing rear aspect of property
Viewing
Please contact us on 01449 722006 if you wish to arrange a viewing appointment for this property, or require further information.
Hamilton Smith - IP16 endeavour to maintain accurate depictions of properties in Virtual Tours, Floor Plans and descriptions, however, these are intended only as a guide and purchasers must satisfy themselves by personal inspection.
ENTRANCE HALL Leading in from front door is the entrance hall with under stairs storage cupboard
KITCHEN High and low level units fitted with window facing rear aspect of property. Space for washing machine, oven and fridge freezer
STAIRS TO FIRST FLOOR Leading off sitting room
SITTING ROOM 10' 9" x 14' 5" (3.3m x 4.4m) With carpet fitted and window facing front aspect of property. Built in cupboard
BATHROOM White suite fitted with toilet sink and bath. Mixer shower fitted with double glazed window
BEDROOM ONE 10' 9" x 11' 9" (3.3m x 3.6m) With carpet fitted and window facing front aspect of property
BEDROOM TWO 15' 1" x 7' 2" (4.6m x 2.2m) With carpet fitted and window facing rear aspect of property
Viewing
Please contact us on 01449 722006 if you wish to arrange a viewing appointment for this property, or require further information.
Hamilton Smith - IP16 endeavour to maintain accurate depictions of properties in Virtual Tours, Floor Plans and descriptions, however, these are intended only as a guide and purchasers must satisfy themselves by personal inspection.

