- Three Bedroom Terrace
- Brand New Carpets
- Brand New Decor
- Gas Central Heating
- Rear Garden
Full Description
Hamilton Smith Lettings are pleased to offer for rent this unfurnished three bedroom terrace house located in Felixstowe. Brand new decor and carpets fitted throughout
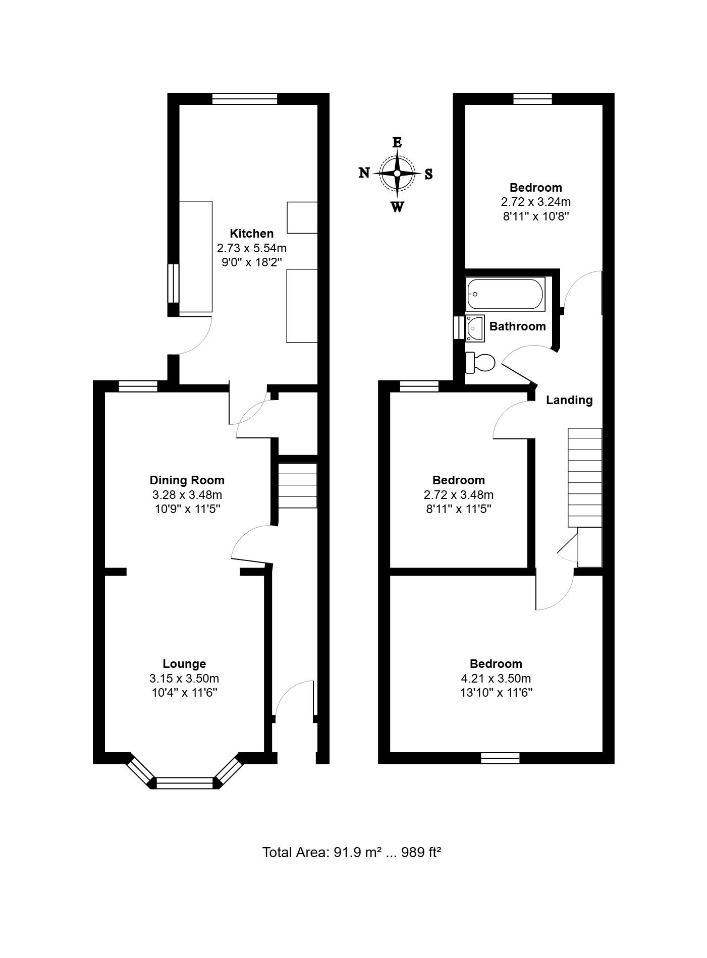
FRONT OF PROPERTY Small grass area with path leading to the front door
ENTRANCE HALL Brand new decor and carpet fitted, with radiator fitted to wall
LOUNGE/DINER 25' 7" x 10' 11" (7.82m x 3.33m) Brand new decor and carpet fitted, with two radiators fitted to wall. Large bay window facing front aspect
KITCHEN 18' 0" x 8' 11" (5.51m x 2.72m) High and low level units fitted with tiled flooring. Brand new decor, 2 double glazed windows and double glazed back door leading to the rear garden. Space for oven, washing machine and fridge freezer
BEDROOM ONE 13' 9" x 11' 3" (4.21m x 3.45m) Brand new decor and carpet fitted, with radiator fitted to wall. Double glazed window
BEDROOM TWO 11' 5" x 8' 10" (3.49m x 2.71m) Brand new decor and carpet fitted, with radiator fitted to wall. Double glazed window
BEDROOM THREE 8' 10" x 10' 7" (2.70m x 3.24m) Brand new decor and carpet fitted, with radiator fitted to wall. Double glazed window
BATHROOM White bathroom suite fitted with toilet, sink and bath with shower over. Double glazed window fitted with radiator to wall
REAR GARDEN Enclosed rear garden which is mainly laid to lawn with pathway and patio area
Viewing
Please contact us on 01449 722006 if you wish to arrange a viewing appointment for this property, or require further information.
Hamilton Smith - IP16 endeavour to maintain accurate depictions of properties in Virtual Tours, Floor Plans and descriptions, however, these are intended only as a guide and purchasers must satisfy themselves by personal inspection.
FRONT OF PROPERTY Small grass area with path leading to the front door
ENTRANCE HALL Brand new decor and carpet fitted, with radiator fitted to wall
LOUNGE/DINER 25' 7" x 10' 11" (7.82m x 3.33m) Brand new decor and carpet fitted, with two radiators fitted to wall. Large bay window facing front aspect
KITCHEN 18' 0" x 8' 11" (5.51m x 2.72m) High and low level units fitted with tiled flooring. Brand new decor, 2 double glazed windows and double glazed back door leading to the rear garden. Space for oven, washing machine and fridge freezer
BEDROOM ONE 13' 9" x 11' 3" (4.21m x 3.45m) Brand new decor and carpet fitted, with radiator fitted to wall. Double glazed window
BEDROOM TWO 11' 5" x 8' 10" (3.49m x 2.71m) Brand new decor and carpet fitted, with radiator fitted to wall. Double glazed window
BEDROOM THREE 8' 10" x 10' 7" (2.70m x 3.24m) Brand new decor and carpet fitted, with radiator fitted to wall. Double glazed window
BATHROOM White bathroom suite fitted with toilet, sink and bath with shower over. Double glazed window fitted with radiator to wall
REAR GARDEN Enclosed rear garden which is mainly laid to lawn with pathway and patio area
Viewing
Please contact us on 01449 722006 if you wish to arrange a viewing appointment for this property, or require further information.
Hamilton Smith - IP16 endeavour to maintain accurate depictions of properties in Virtual Tours, Floor Plans and descriptions, however, these are intended only as a guide and purchasers must satisfy themselves by personal inspection.

