- 3 Bedroom Semi Detached
- Oil Central Heating
- Off Road Parking
- Rear Garden
Full Description
Hamilton Smith Lettings are pleased to offer this three bedroom semi detached family home boasting off road parking, good size rear garden and oil central heating
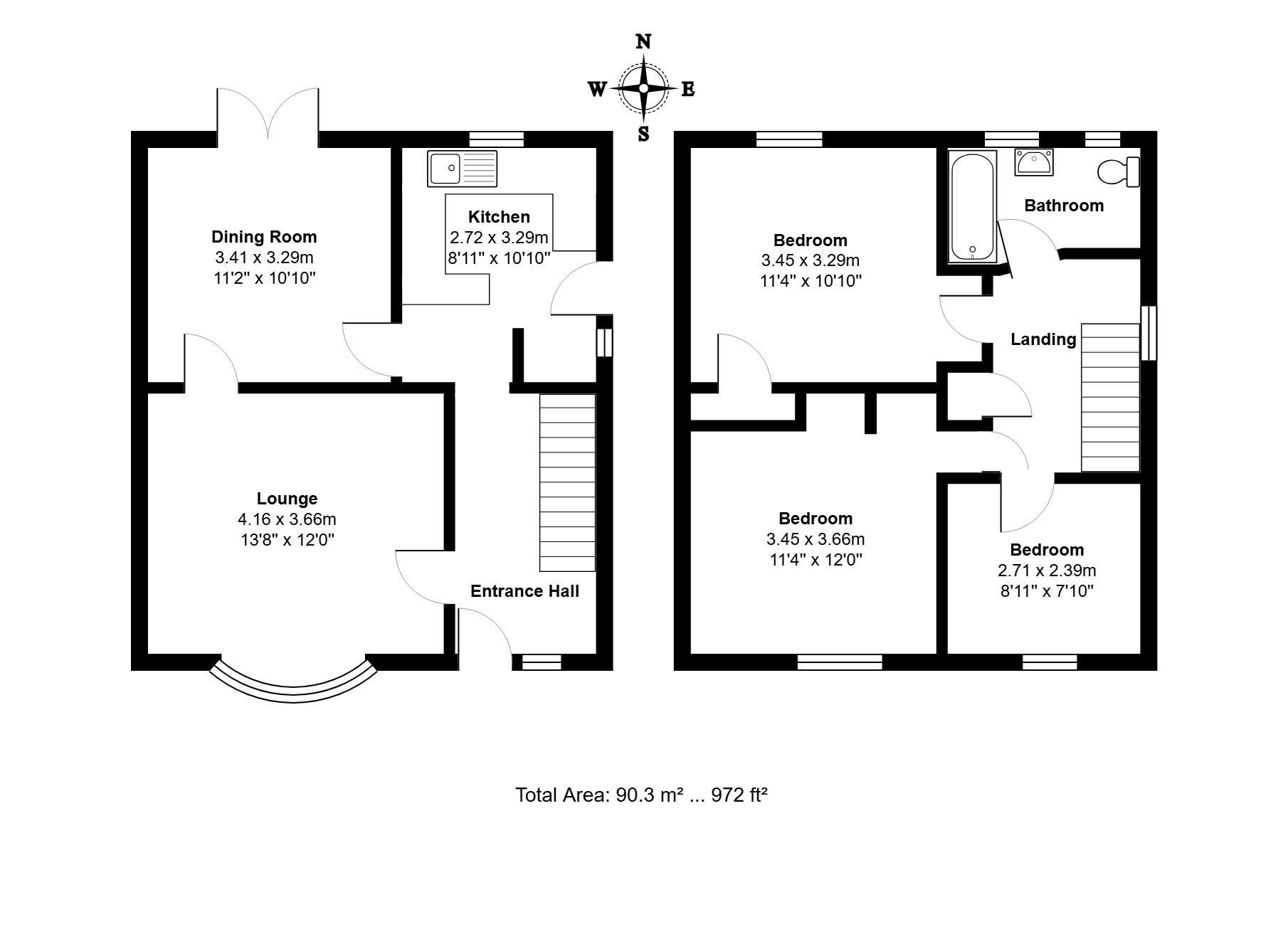
ENTRANCE HALL entry through double glazed door, wall radiator, under stairs cupboard, stairs leading to first floor
SITTING ROOM 13' 7" x 11' 5" (4.15m x 3.50m) double glazed window to front, two wall radiators
DINING ROOM 10' 9" x 10' 9" (3.30m x 3.29m) patio doors to rear garden, wall radiator
KITCHEN variety of wall and base units, breakfast bar, stainless steel sink and drainer, electric hob, electric oven, space for appliances, wall radiator, double glazed window to dual aspect, double glazed door to side pathway
STAIRS/LANDING airing cupboard, double glazed window
BEDROOM 11' 3" x 10' 9" (3.43m x 3.30m) double glazed window to rear, wall radiator, built in wardrobe cupboard
BEDROOM 11' 3" x 10' 5" (3.45m x 3.20m) double glazed window to front, wall radiator, built in wardrobe alcove
BEDROOM 8' 10" x 7' 2" (2.70m x 2.20m) double glazed window to front, wall radiator
BATHROOM suite comprising of baht with electric shower over, hand basin, low level w/c, vanity unit, wall radiator, double glazed window to rear aspect
OUTSIDE to the front of the property is laid to gravel offering off road parking, gate leading to the rear garden. To the rear of the property is a patio area, mainly laid to lawn, shed with power inside, field views to the bottom of the garden
Viewing
Please contact us on 01449 722006 if you wish to arrange a viewing appointment for this property, or require further information.
Hamilton Smith - IP16 endeavour to maintain accurate depictions of properties in Virtual Tours, Floor Plans and descriptions, however, these are intended only as a guide and purchasers must satisfy themselves by personal inspection.
ENTRANCE HALL entry through double glazed door, wall radiator, under stairs cupboard, stairs leading to first floor
SITTING ROOM 13' 7" x 11' 5" (4.15m x 3.50m) double glazed window to front, two wall radiators
DINING ROOM 10' 9" x 10' 9" (3.30m x 3.29m) patio doors to rear garden, wall radiator
KITCHEN variety of wall and base units, breakfast bar, stainless steel sink and drainer, electric hob, electric oven, space for appliances, wall radiator, double glazed window to dual aspect, double glazed door to side pathway
STAIRS/LANDING airing cupboard, double glazed window
BEDROOM 11' 3" x 10' 9" (3.43m x 3.30m) double glazed window to rear, wall radiator, built in wardrobe cupboard
BEDROOM 11' 3" x 10' 5" (3.45m x 3.20m) double glazed window to front, wall radiator, built in wardrobe alcove
BEDROOM 8' 10" x 7' 2" (2.70m x 2.20m) double glazed window to front, wall radiator
BATHROOM suite comprising of baht with electric shower over, hand basin, low level w/c, vanity unit, wall radiator, double glazed window to rear aspect
OUTSIDE to the front of the property is laid to gravel offering off road parking, gate leading to the rear garden. To the rear of the property is a patio area, mainly laid to lawn, shed with power inside, field views to the bottom of the garden
Viewing
Please contact us on 01449 722006 if you wish to arrange a viewing appointment for this property, or require further information.
Hamilton Smith - IP16 endeavour to maintain accurate depictions of properties in Virtual Tours, Floor Plans and descriptions, however, these are intended only as a guide and purchasers must satisfy themselves by personal inspection.

