- Entrance Hall
- Open Plan Sitting Room/Kitchen
- One Bedroom
- Shower Room
- Gas Central Heating
- One Parking Space
Full Description
Hamilton Smith Lettings are pleased to offer for rent this modern one bedroom first floor flat located in the popular village of Needham Market
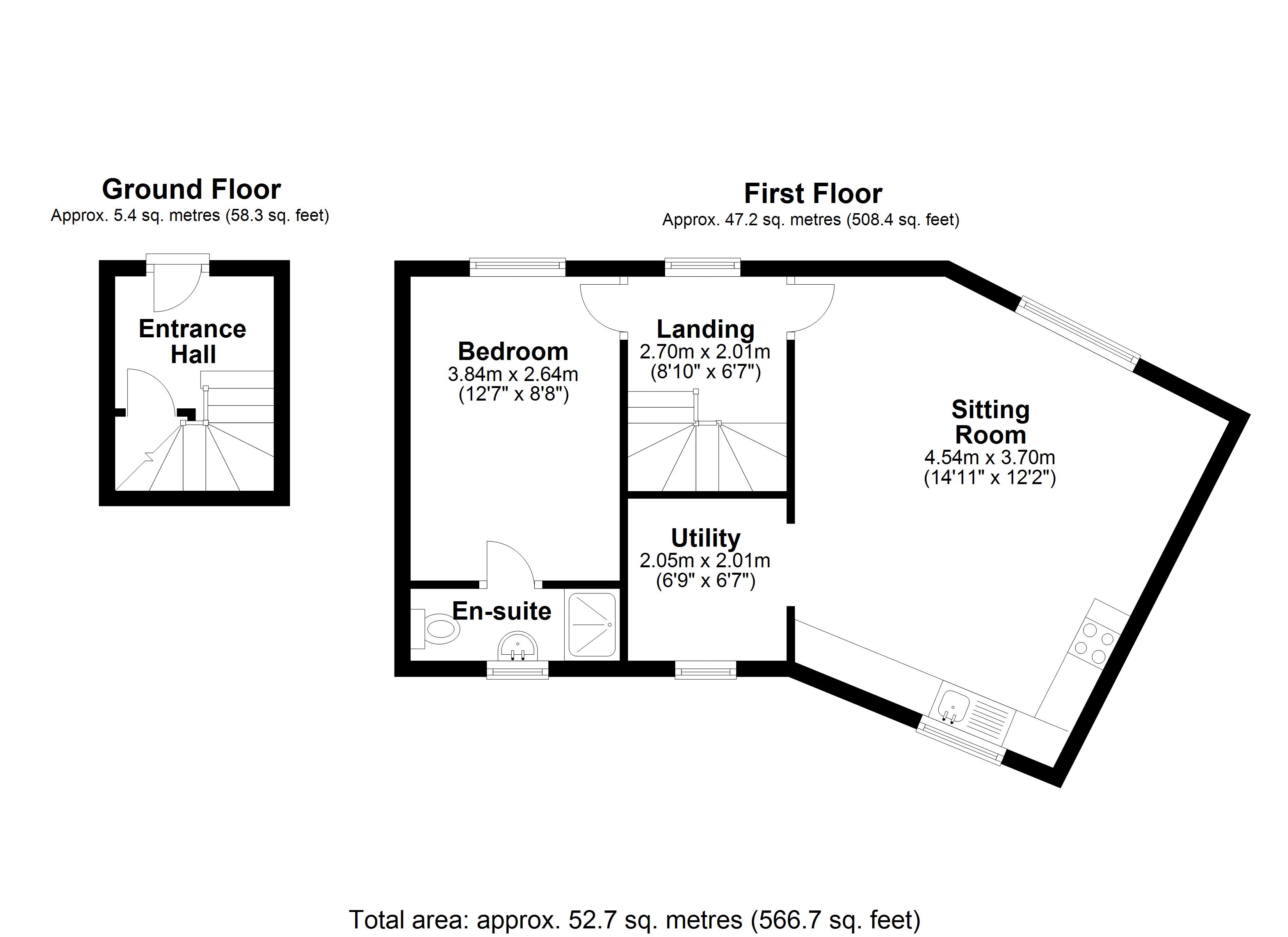
ENTRANCE HALL Leading in from doubled glazed front door is entrance hall with under stairs cupboard and stairs leading to first floor
OPEN PLAN SITTING ROOM AND KITCHEN 4.80m by 4.80m max Sitting Room Area
Wooden flooring fitted, white wall radiator and double glazed window facing front
Kitchen
High and low level cupboards fitted, built in oven and hob, fridge freezer and washing machine, double glazed window facing rear
BEDROOM 3.87m by 2.62m Beige carpet fitted, white wall radiator, double glazed window facing front
SHOWER ROOM White suite fitted with toilet, sink and enclosed shower unit, double glazed window facing rear, wall radiator
Viewing
Please contact us on 01449 722006 if you wish to arrange a viewing appointment for this property, or require further information.
Hamilton Smith - IP16 endeavour to maintain accurate depictions of properties in Virtual Tours, Floor Plans and descriptions, however, these are intended only as a guide and purchasers must satisfy themselves by personal inspection.
ENTRANCE HALL Leading in from doubled glazed front door is entrance hall with under stairs cupboard and stairs leading to first floor
OPEN PLAN SITTING ROOM AND KITCHEN 4.80m by 4.80m max Sitting Room Area
Wooden flooring fitted, white wall radiator and double glazed window facing front
Kitchen
High and low level cupboards fitted, built in oven and hob, fridge freezer and washing machine, double glazed window facing rear
BEDROOM 3.87m by 2.62m Beige carpet fitted, white wall radiator, double glazed window facing front
SHOWER ROOM White suite fitted with toilet, sink and enclosed shower unit, double glazed window facing rear, wall radiator
Viewing
Please contact us on 01449 722006 if you wish to arrange a viewing appointment for this property, or require further information.
Hamilton Smith - IP16 endeavour to maintain accurate depictions of properties in Virtual Tours, Floor Plans and descriptions, however, these are intended only as a guide and purchasers must satisfy themselves by personal inspection.

